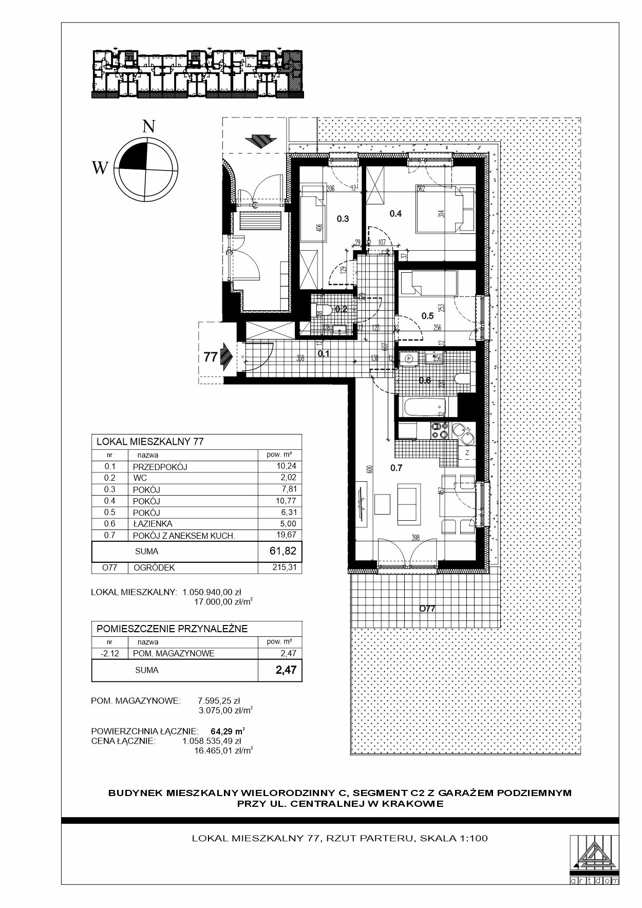
Mieszkanie 77


Pobierz plik PDF
Numer mieszkania
77
Powierzchnia
64,29 m²
Pokoje
4
Piętro
Ekspozycja
północ-południe
Cena
1 058 535,49 zł
(16 465,01 zl/m²)
Numer budynku