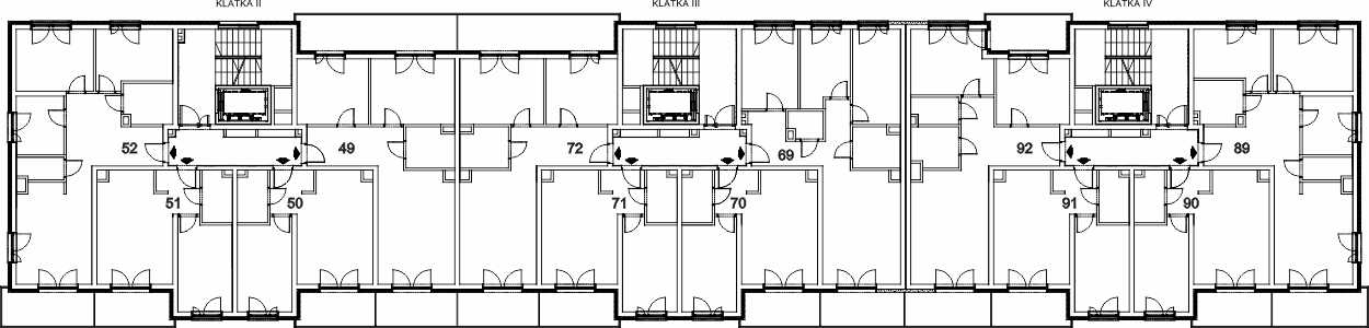
Kraków, Czyżyny

ul. Centralna 51C

Budynek C2, piętro 3

Lista mieszkań piętra, piętro 3