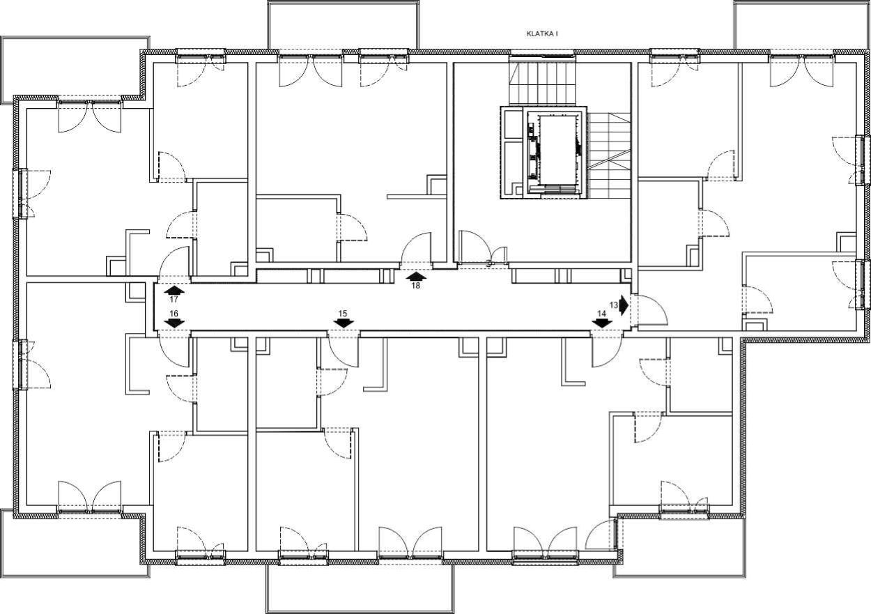
Kraków, Czyżyny

ul. Centralna 51C

Budynek C1, piętro 2

Lista mieszkań piętra, piętro 2