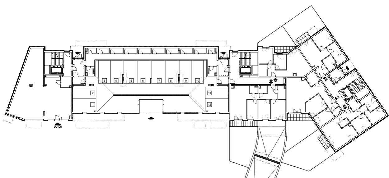
Kraków, Płaszów

ul. Przewóz 4

Budynek C, parter

Lista mieszkań piętra, parter