Kraków, Płaszów

ul. Przewóz 4

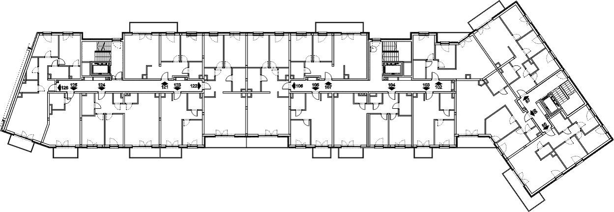
Budynek C, piętro 3

Lista mieszkań piętra, piętro 3