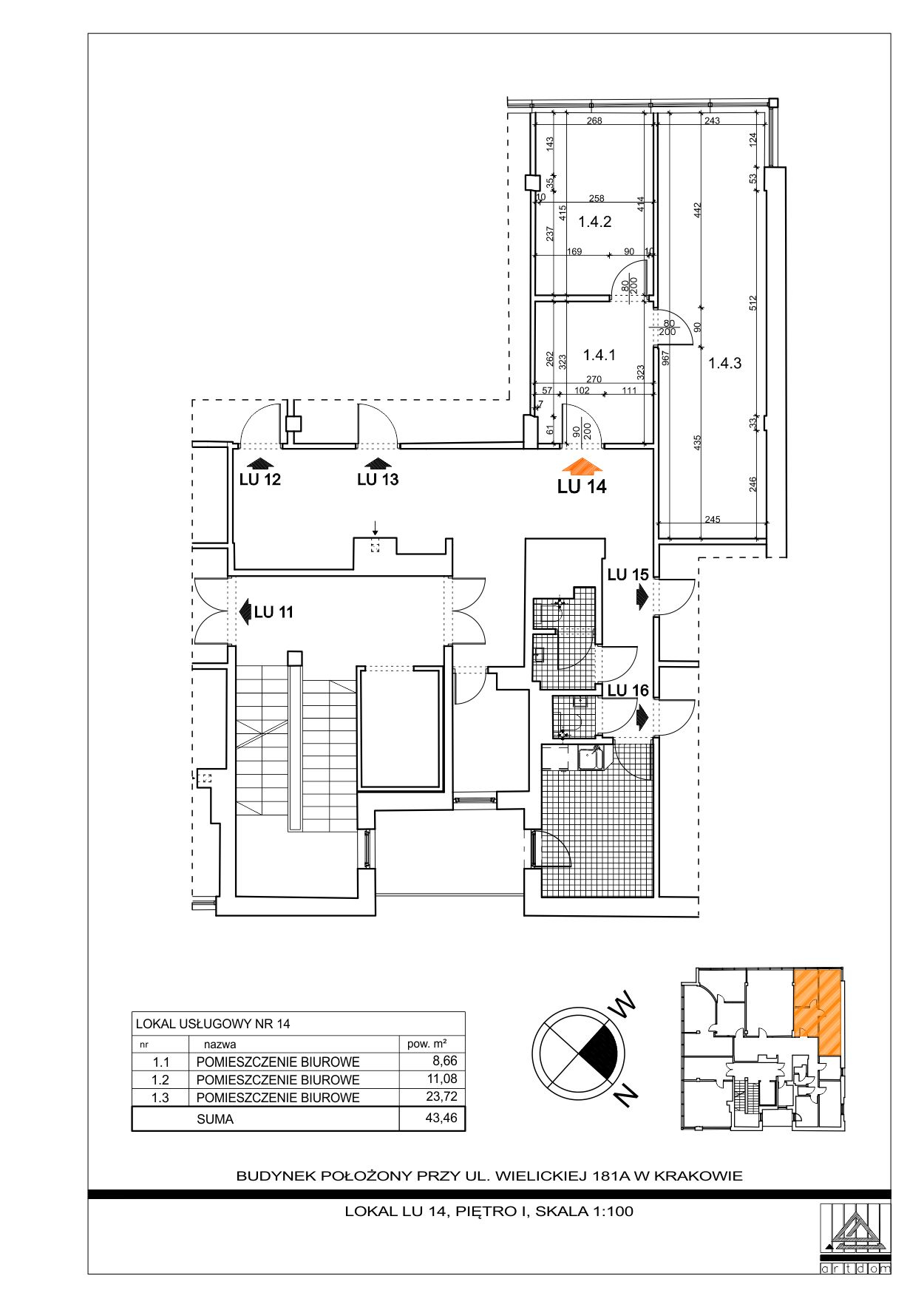
Lokal Biurowy LU 14


Pobierz plik PDF
Numer lokalu biurowego
LU 14
Powierzchnia
43,46 m²
Pokoje
3
Piętro
Ekspozycja
zachód
Numer budynku