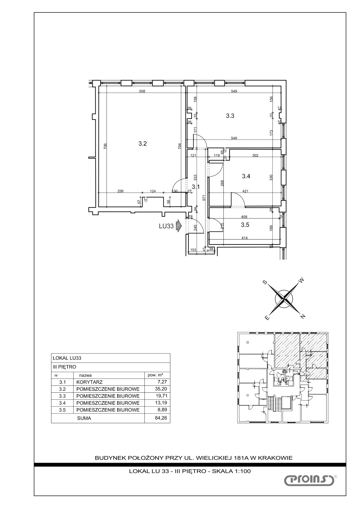
Lokal Biurowy LU 33


Pobierz plik PDF
Numer lokalu biurowego
LU 33
Powierzchnia
84,26 m²
Pokoje
4
Piętro
Ekspozycja
południowy-zachód
Numer budynku